BROOKLYN HEIGHTS
Renovation
BROOKLYN, NY
Scope: 700 SF
Contractor: Scordio Construction
Completed:
Fall 2023
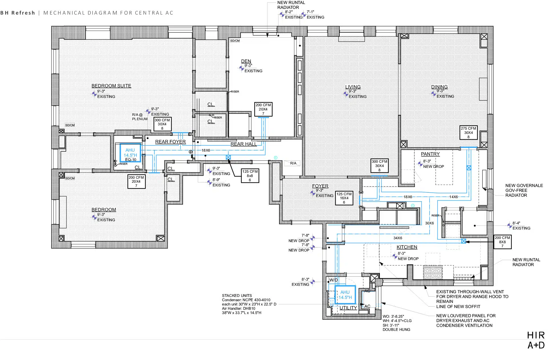
This kitchen refresh accompanied a very intricate, but nearly hidden endeavor: adding central AC to a 3-bedroom apartment in a Brooklyn Heights landmarked building with as little disruption as possible. The cool upgrade included a high-contrast kitchen to complement a colorful collection of art and furnishings.
About This Project
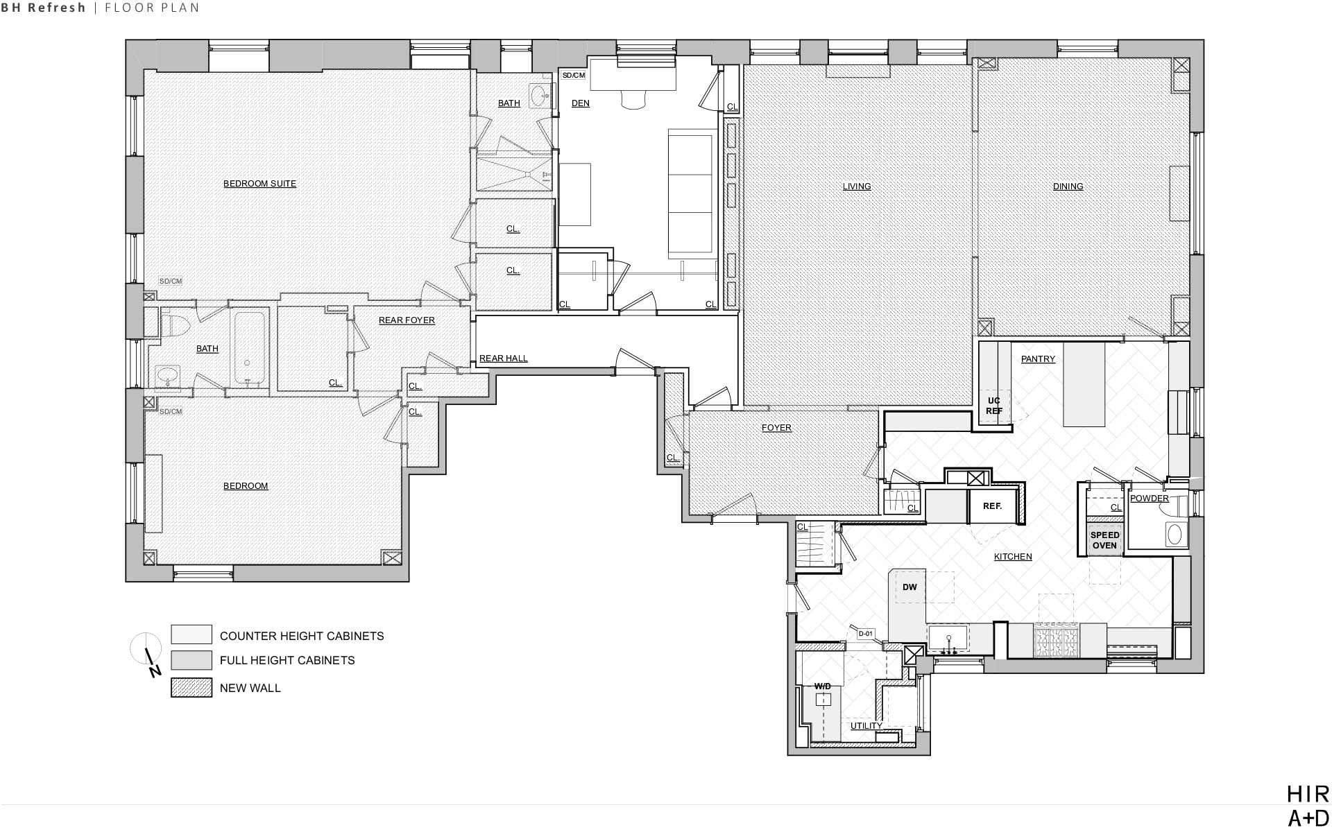
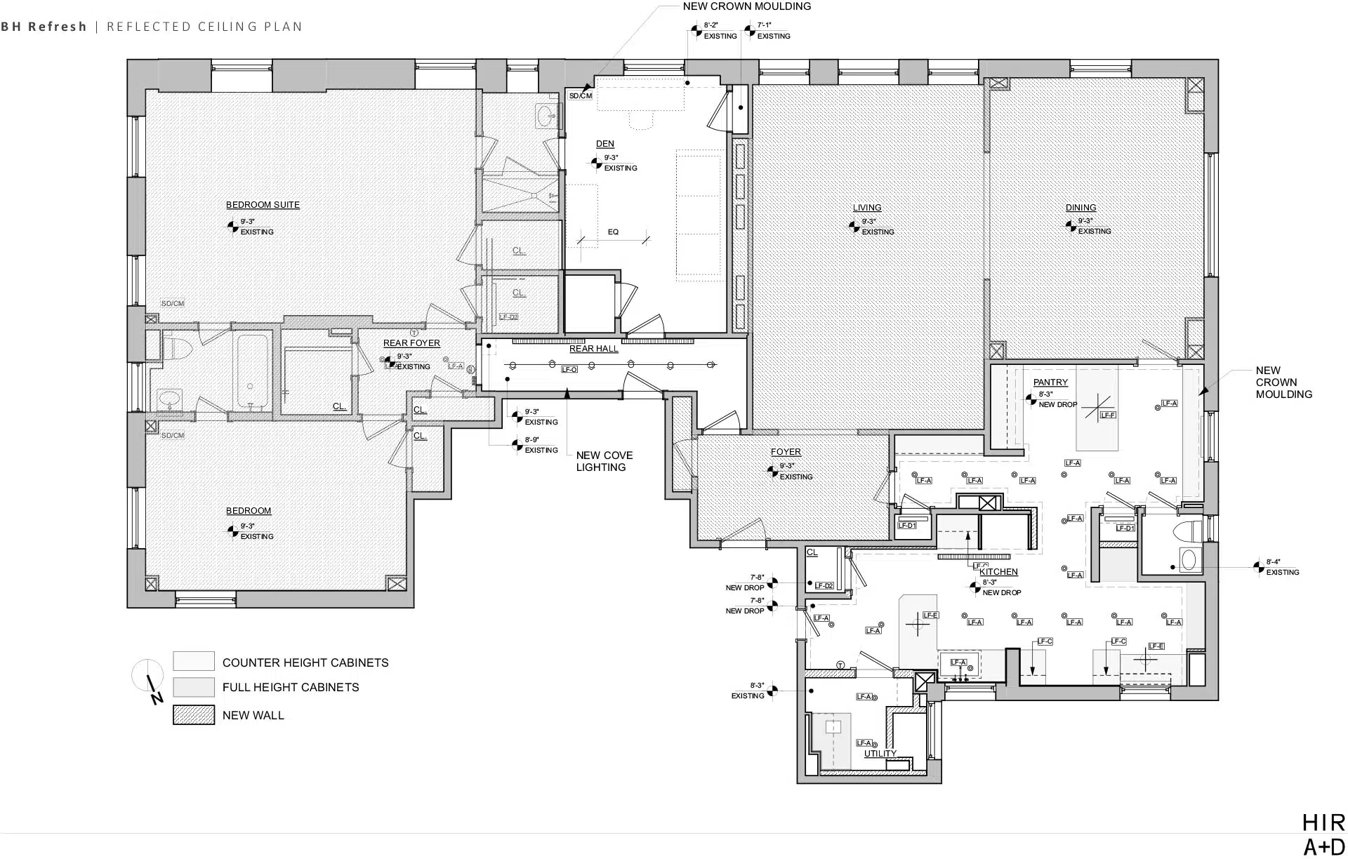
Classic pre-war apartments are known for their high ceilings and formal layouts, separating private bedrooms and service spaces from those where guests are received and entertained. The entry, living and dining rooms tend to be spacious and airy, with kitchen and utilities fit snugly in another wing.
While the owners of this Brooklyn Heights pre-war had lived here for years and appreciated the traditional layout, as with many families, modern life pulled them to gather, work, and entertain in the kitchen. Moreover, the summers were becoming more unbearable, and they wanted to appreciate their sweeping views without window AC units.
The primary goal was to add a larger eat-in space between the kitchen and the dining room where they could easily serve food and drinks, and guests could easily circulate. The change would functionally open the kitchen to the rest of the home while maintaining glass-paned doors when privacy or quiet was desired. We also needed to create an exterior venting mechanical room for stacked AC condensers and the dryer vent. As the building was landmarked, there was only really one option for the mechanical room window vent, in the back corner of the kitchen. The owners had to sacrifice a bit of laundry and storage space, but we were able to carve out a large space for gathering and a clean hallway to the foyer.
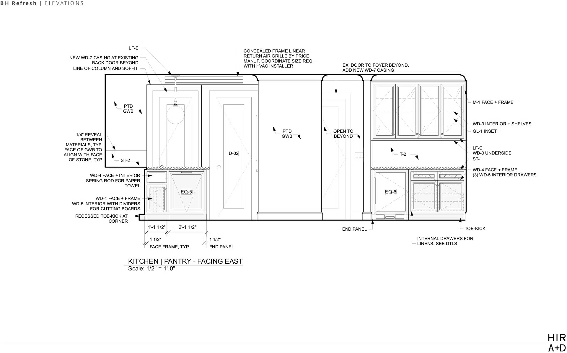
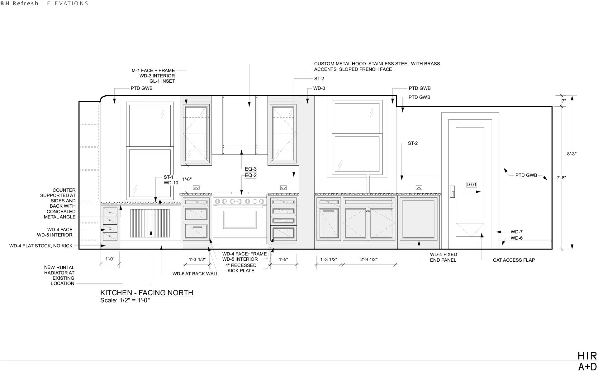
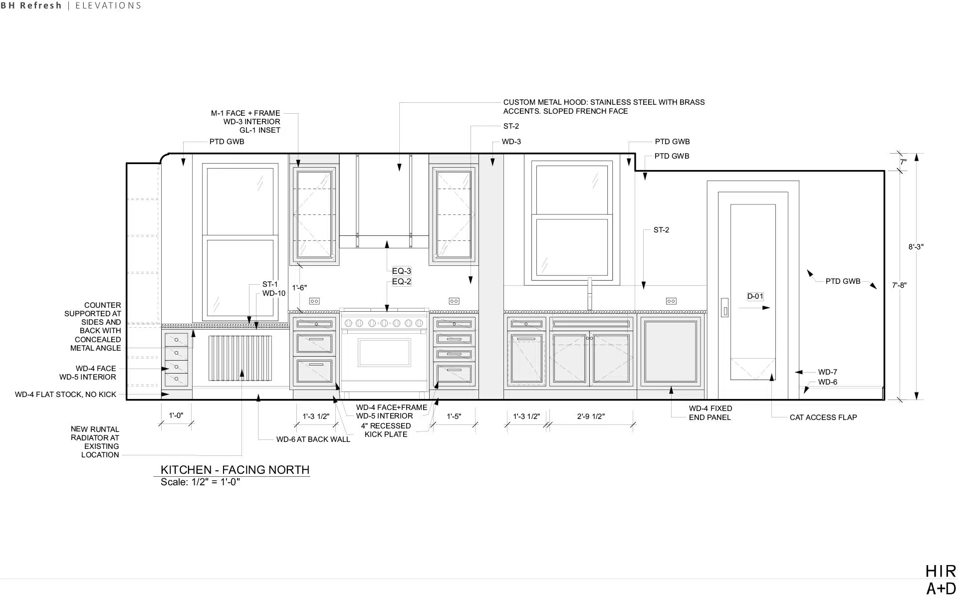
This family had also curated a vibrant selection of artwork and furnishings reflecting their personal style and background. From the outset we knew that the design aesthetic of the kitchen needed to be both neutral and bold, to showcase and frame the art and objects within. The black, white, and brass palette is an elegant selection that integrates seamlessly with the existing motif.
THE DESIGN PROCESS
- Processed with VSCO with av4 preset
- Processed with VSCO with av4 preset
- Processed with VSCO with av4 preset
- Processed with VSCO with av4 preset
- Processed with VSCO with av4 preset
- Processed with VSCO with av4 preset
- Processed with VSCO with av4 preset
- Processed with VSCO with av4 preset
- Processed with VSCO with av4 preset
BEFORE & AFTER









































