Greenfield Hill Colonial
Renovation and Addition
FAIRFIELD, CT
Scope: 6500 SF
Contractor: Segerson Builders
Interior Decoration: The Elegant Abode
Landscape Design: Elise Landscape + Nursery
Completed:Â 2019
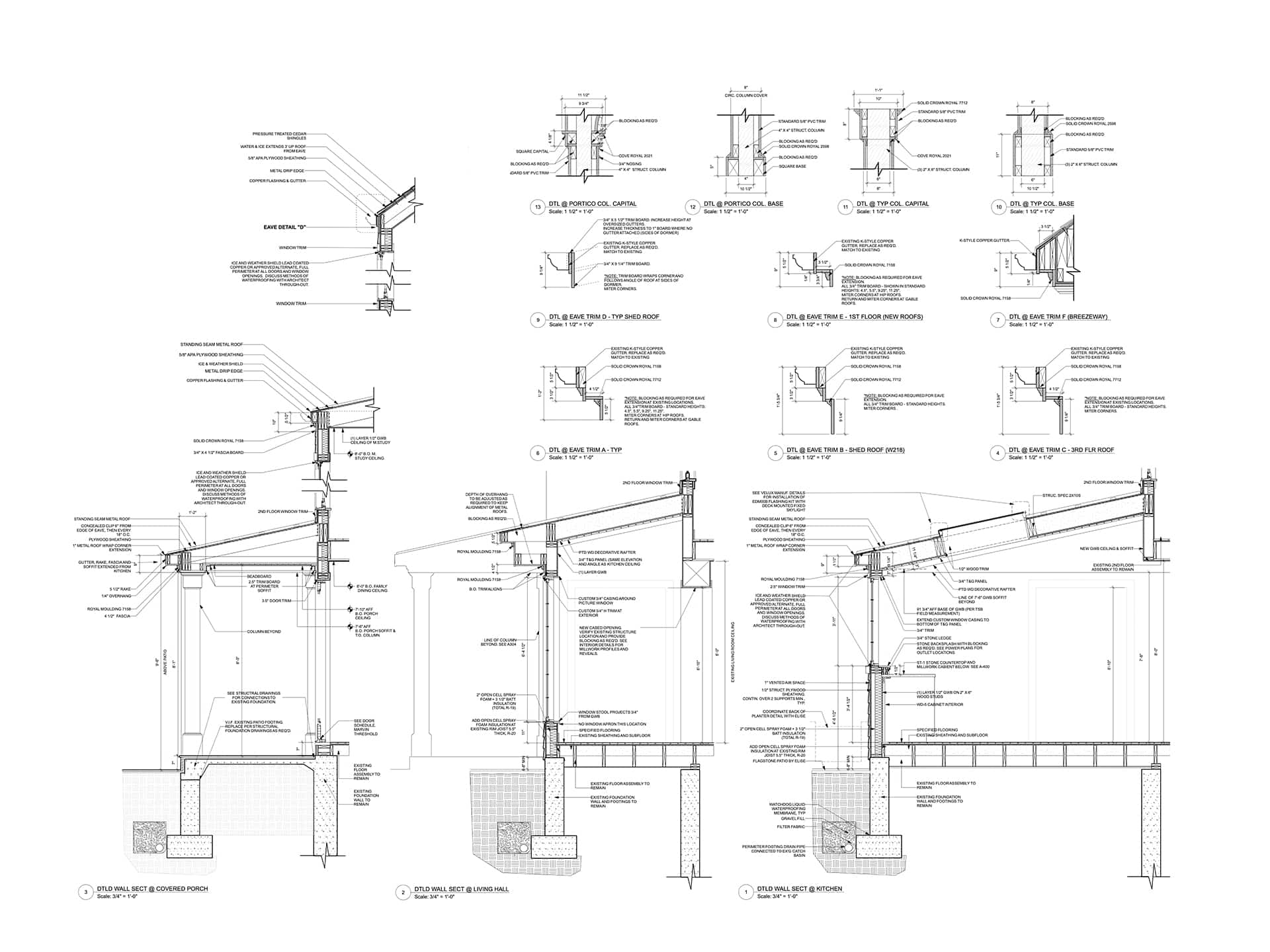
Like many homes expanded over decades, this 1951 Colonial-style house had become a disparate collection of architectural styles and underutilized spaces. A few strategic alterations have restored the timeless elegance of the original property while supporting a more contemporary lifestyle.
Featured In:
About This Project
Located in a historic neighborhood of Fairfield, CT, this 1950s Federal-style house is sited high at the entry of a long 2-acre lot, with sweeping views of old-growth woods and protected wetlands. The new owners recognized that the property provided unparalleled opportunities for outdoor living and entertaining; however, the house had undergone two large additions that felt dated and incongruous with the original home. Moreover, while they loved the traditional style of the house, they felt the property needed to better reflect their casual lifestyle and take better advantage of the relationship to the landscape.
Our instinct was, therefore, to treat the property as a gradation of formality; a formal, traditional front with a comfortable and inviting back patio, against a wild, forested backdrop. We chose to work closely with a landscape architect early in the design process to ensure fluidity and alignment across the property.
To enhance the front, we
- Created a more detailed, traditional portico
- Reclad the house in uniform siding, removed shutters, and replaced windows for symmetry
- Regraded the walkway and added ceremonial steps
- Reconfigured the driveway and parking so that, upon arrival, the house is centered between two large trees
At the back, we removed underutilized spaces that blocked access to the yard and reoriented the garage and pool house to anchor the entire multi-level patio, creating a central courtyard and garden landscape that is visible and accessible from various areas in and around the house.
Stepping into the main foyer, guests have an impressive view through the central axis of the house, over the pool and terraced gardens, and across the length of the yard to the distant nature preserve. The side entry is no less ceremonial; both entries have a strong axial view with layered light and thresholds that simultaneously convey the depth of the house and property as well as its intimate niches.
Through thoughtful intervention, we layered modern features into a traditional home and refined the original architecture to impart crisp, contemporary clarity. By approaching this renovation as a selective edit rather than a new addition, we could tastefully respond to today’s more casual lifestyle to make the home feel personalized, cohesive, and timeless.
THE DESIGN PROCESS
BEFORE & AFTER

















































































