BRIDGER CANYON RETREAT
New Build
BOZEMAN, MT
Scope: 4300 SF
Contractor: CWJ & Associates
In collaboration with Bozeman-based architecture firm Love | Schack Architecture.
Completed:
Spring 2024
HIR worked with the owners on the conceptual design and interior architecture of this year-round mountain retreat. It received Passive House Certification thanks to the efforts and expertise of the local architects and contractor.
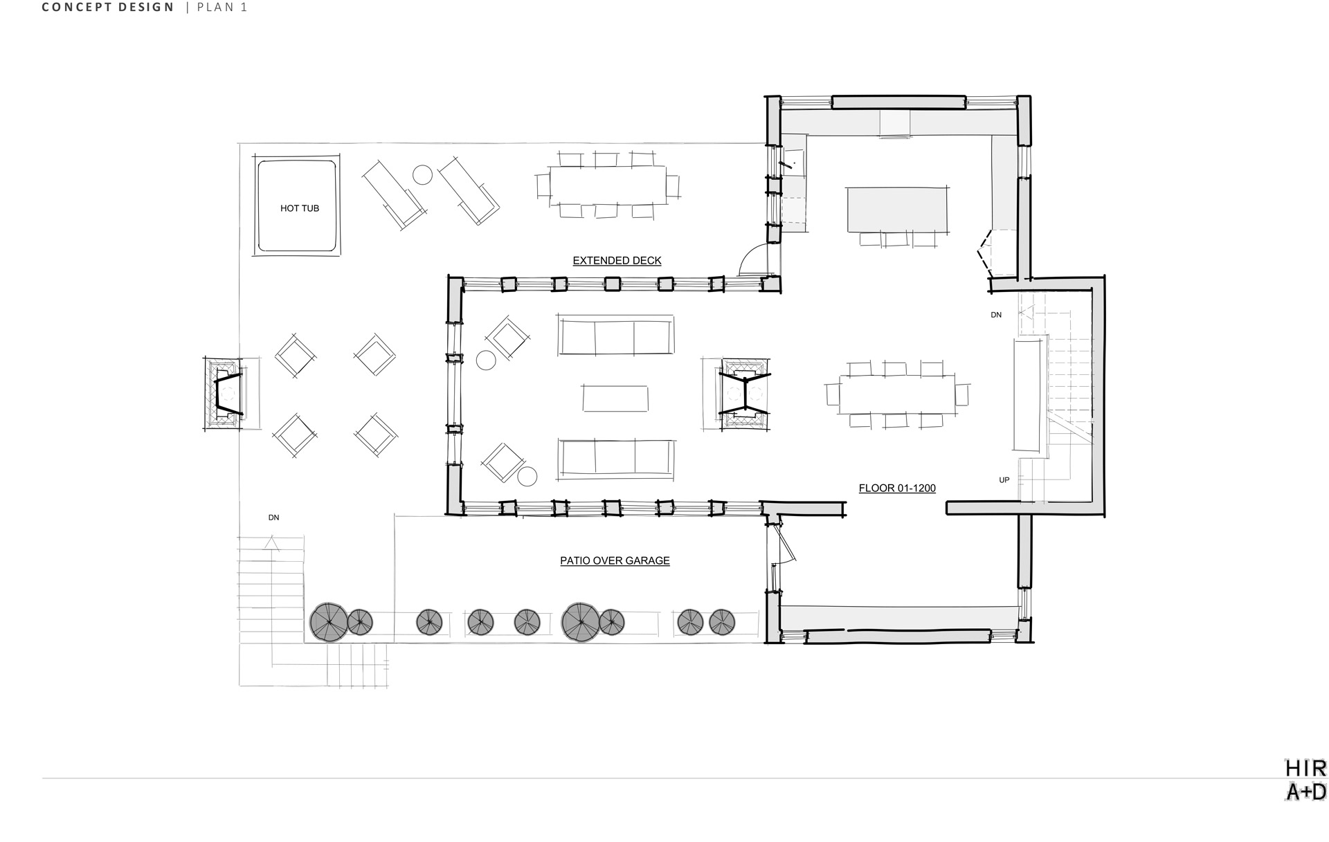
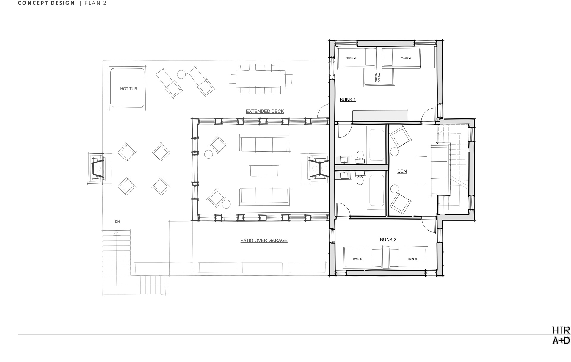
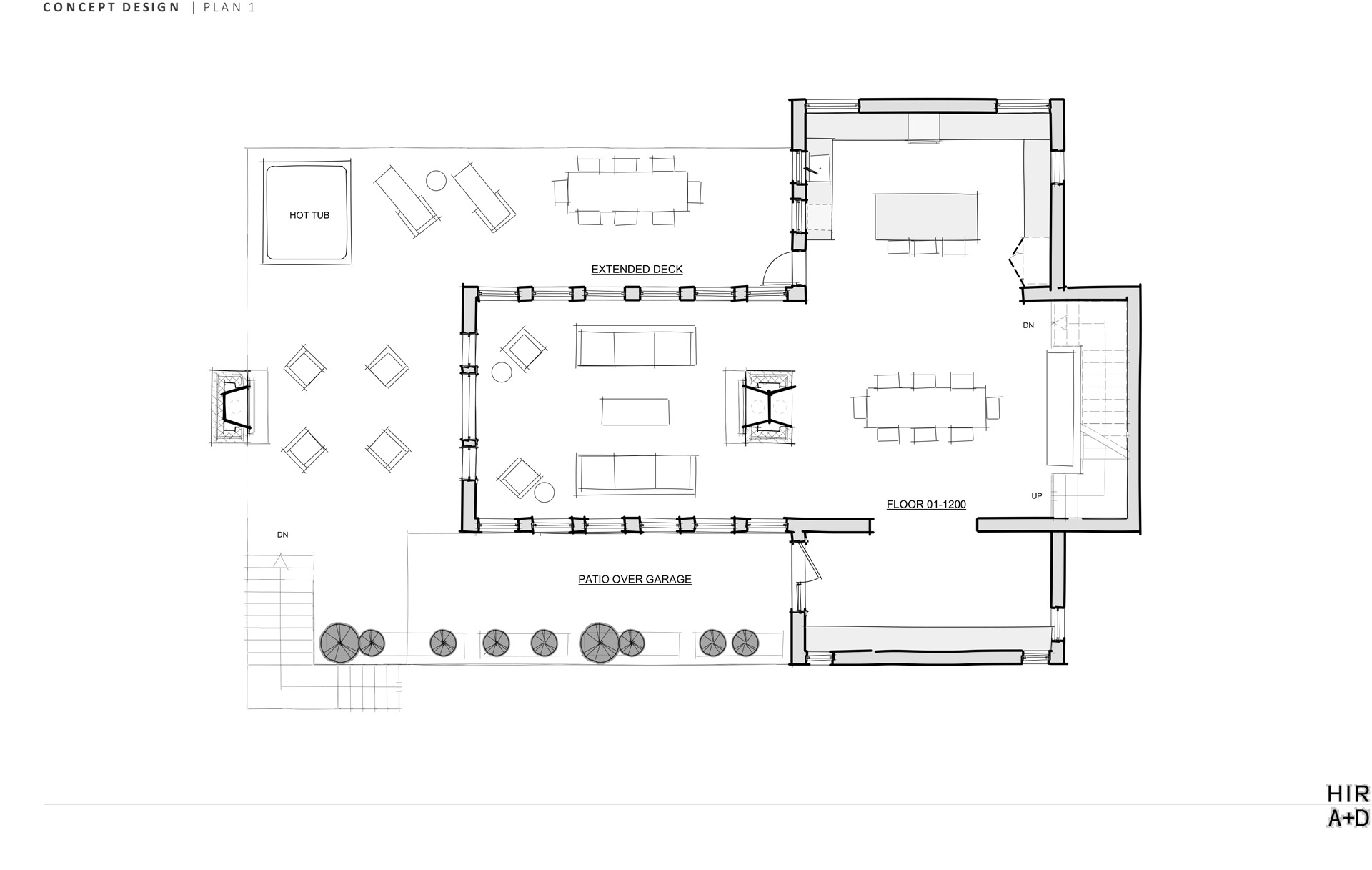
About This Project
In the summer of 2020, HIR was asked to envision a new vacation house near Bozeman, MT. Conceived as a year-round destination for friends, family, and renters, the house needed to serve a variety of guests comfortably and stylishly. HIR provided consultation services to the owners in the early stages of the process to create a conceptual design attentive to their practical concerns and design aspirations. Over the course of the next year, the Bozeman-based practice, Love | Schack Architecture, developed the parti into a sustainable mountain house, achieving PHI Passive Haus certification. HIR continued with the design of the interiors, developing the plans and selecting the materials and fixtures to reflect the owner’s modern aesthetic. This collaboration allowed each designer to share their unique strengths, creating a residence that bridges functionality and comfort with modern mountain magic.
THE DESIGN PROCESS






























