GREENFIELD HILL WINE VAULT
Basement Conversion
FAIRFIELD, CT
Scope: 150 SF
Contractor:
Segerson Builders
Completed:
Summer 2022
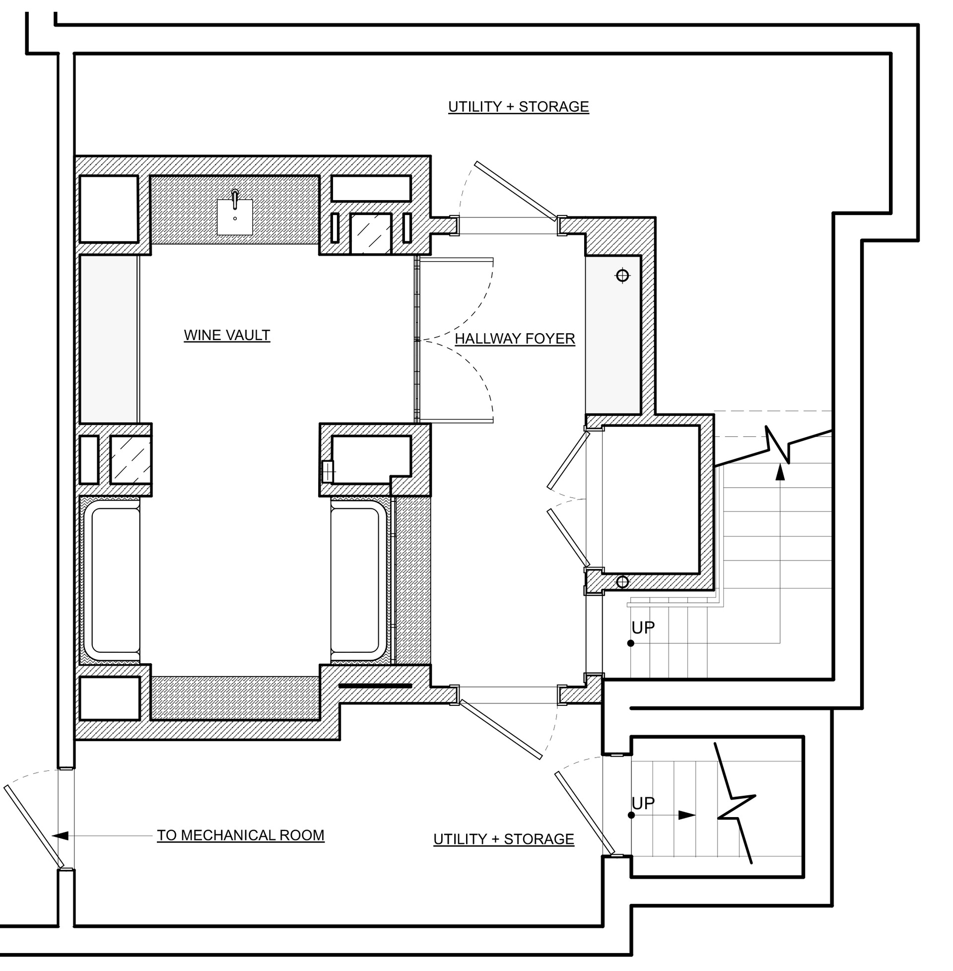
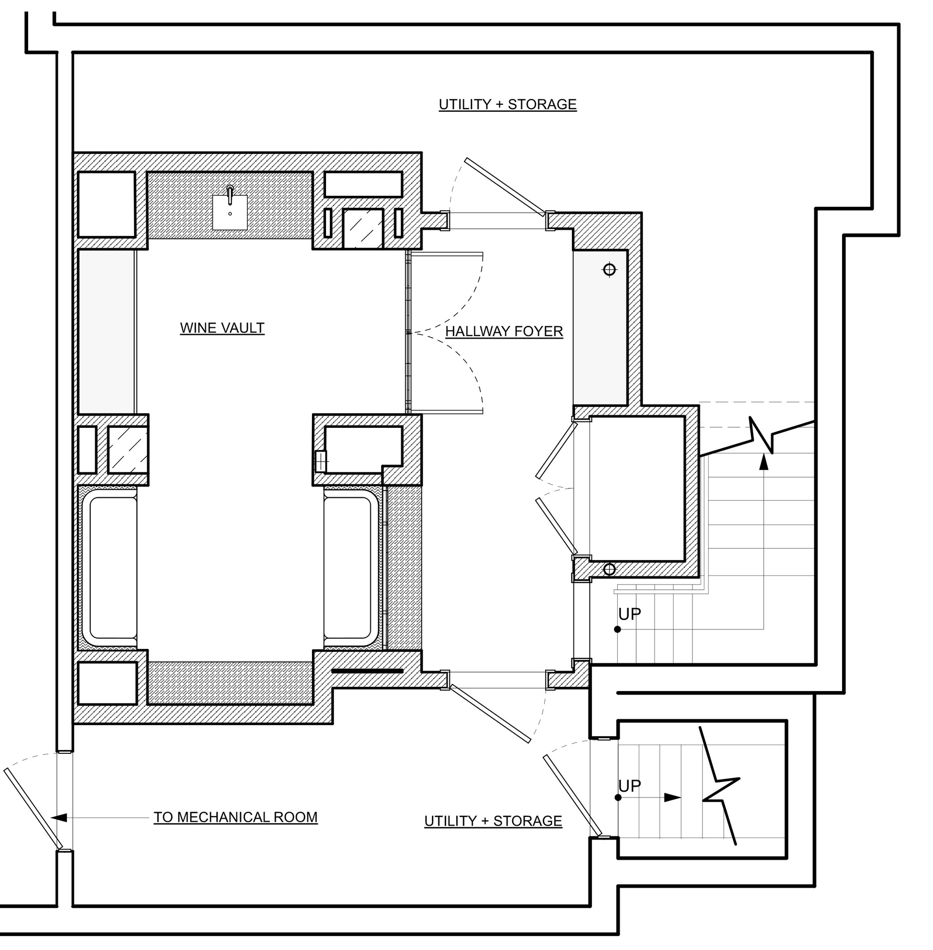
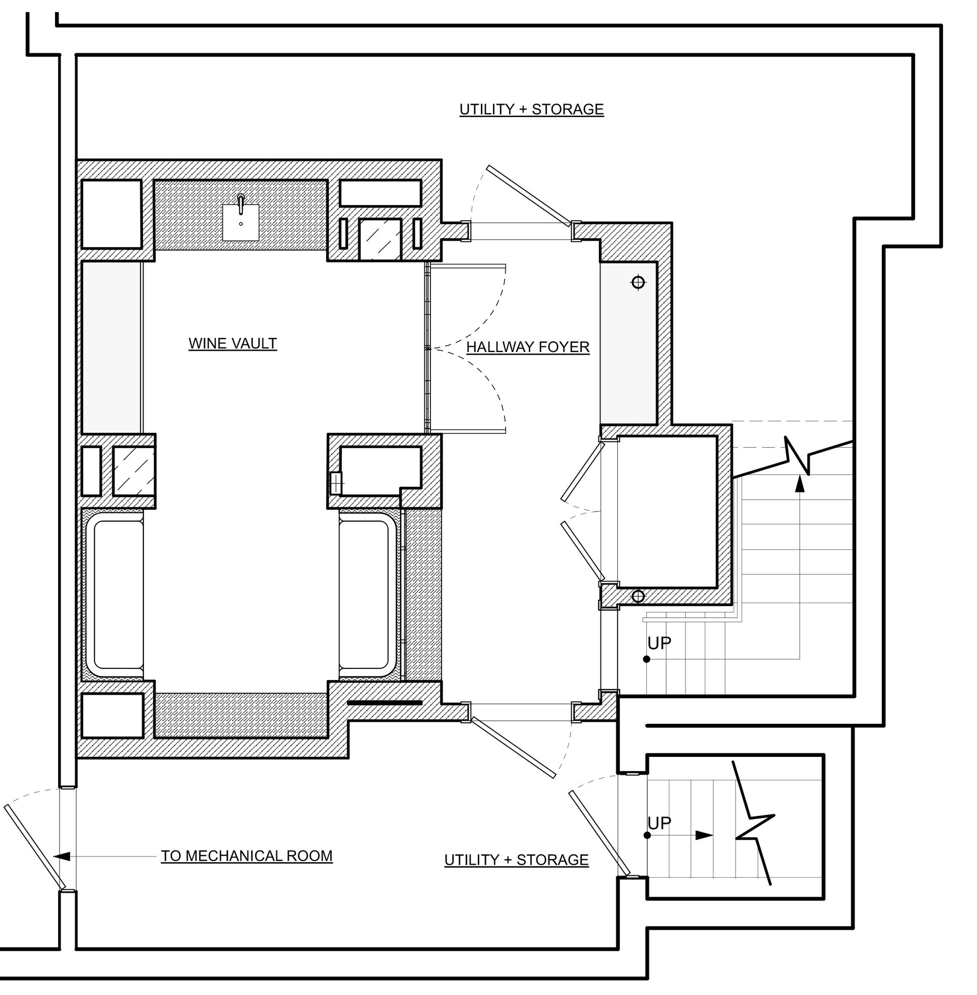
This speakeasy-style wine room is a fully insulated, climate-controlled, 300-bottle wine cellar, whose 150 SF footprint is formed by two adjacent groin vaults. Six identical arched openings create passage, storage, service, and seating within the tiled sanctuary. The result is a space that is both functional and dazzling: a showpiece for entertaining whose style and finishes blend seamlessly with the previously renovated home.
Featured In:


About This Project
One couple’s desire to ‘unbox’ their wine collection soon grew into a dream to create a unique speakeasy-style tasting room that complemented the aesthetic of their recently renovated home. The space available for this subterranean experience was an unfinished basement of varying head heights, columns, and overlapping service lines. The footprint for a fully insulated climate-controlled cellar, as well as hidden access to existing mechanical spaces, was limited to 250 SF. This limitation in size and the desire to surprise inspired a bold solution of archways that form the passage, storage, serving, and sitting areas of the vaulted storage bar, and play with the same materials and contrasts in light found throughout the rest of the house.
Now, one opens a ribbed glass door off the main-level pantry and enters a dimly lit staircase illuminated by recessed step lights. They turn the corner at the landing and catch a glimpse of a moody hallway, whose ceiling and storage walls are saturated with a deep green. At the bottom of the stairs, they stand opposite a large arched window through which they find a bright tiled groin vault, repeating through the antiqued mirror wall. The black frame of the insulated windows and doors, the brass accents, and the pattern and color of the tile and millwork panels are all found throughout the home.
The 300-bottle wine cellar is less than 150 SF, but it contains a wet bar with an icemaker and velvet-covered loveseats with blanket drawers. In addition to standard bottle storage, tiled niches with glass shelves and cove lights display extra-large specialty bottles, decanters and wine crates.
THE DESIGN PROCESS
BEFORE & AFTER































