GREENPORT VICTORIAN
Renovation and Addition
GREENPORT, NEW YORK
Scope: 1700 SF
Contractor: Vector East
Completed:
Summer 2021
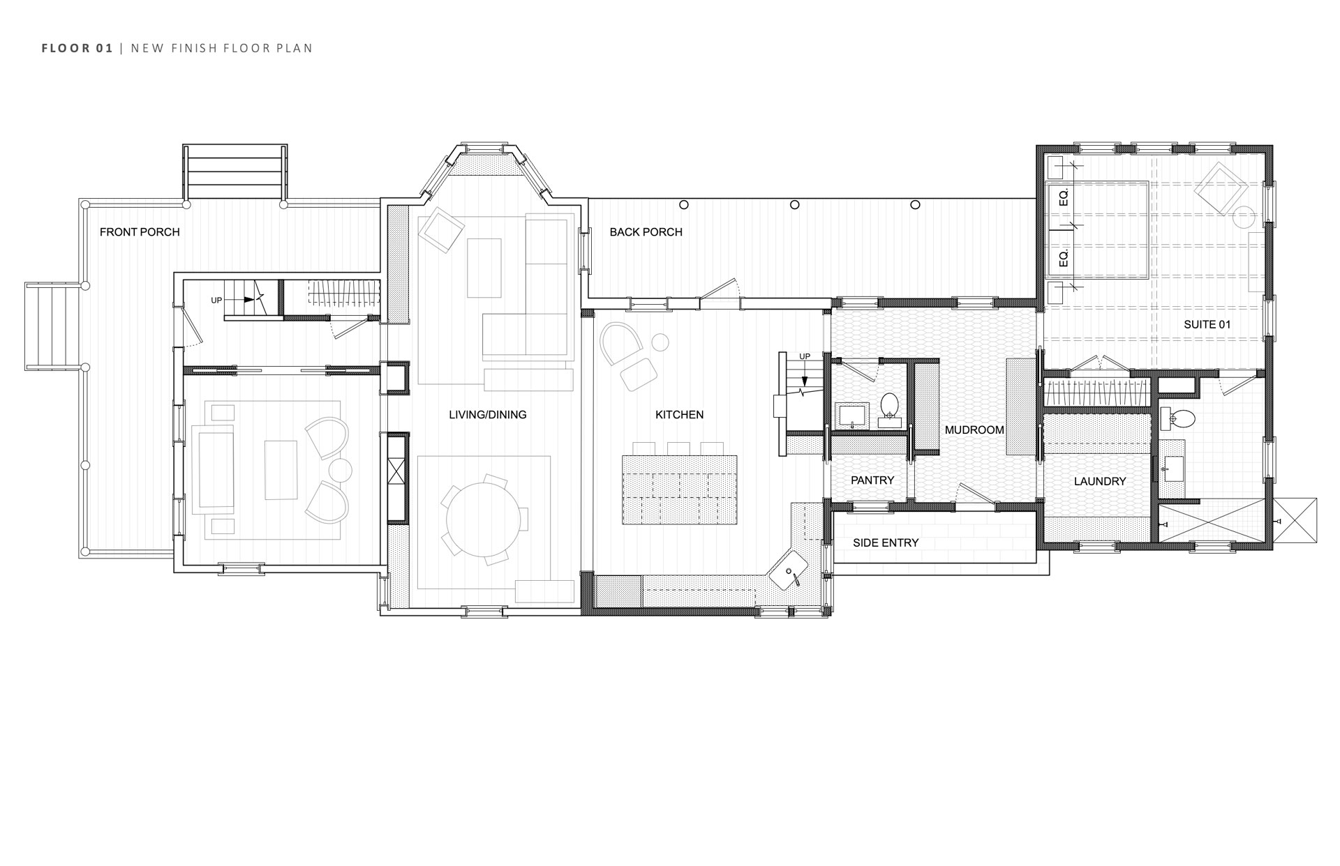
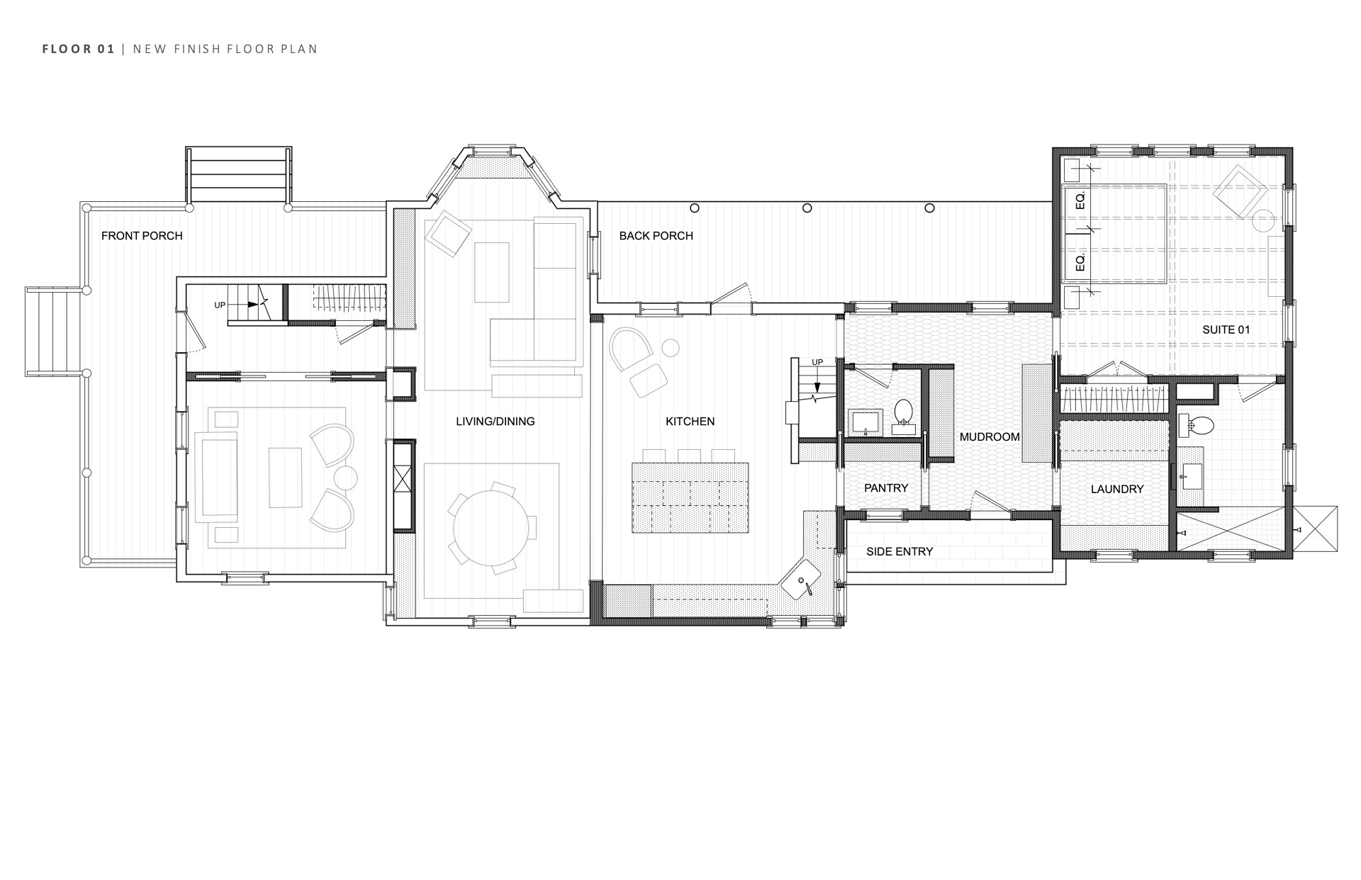
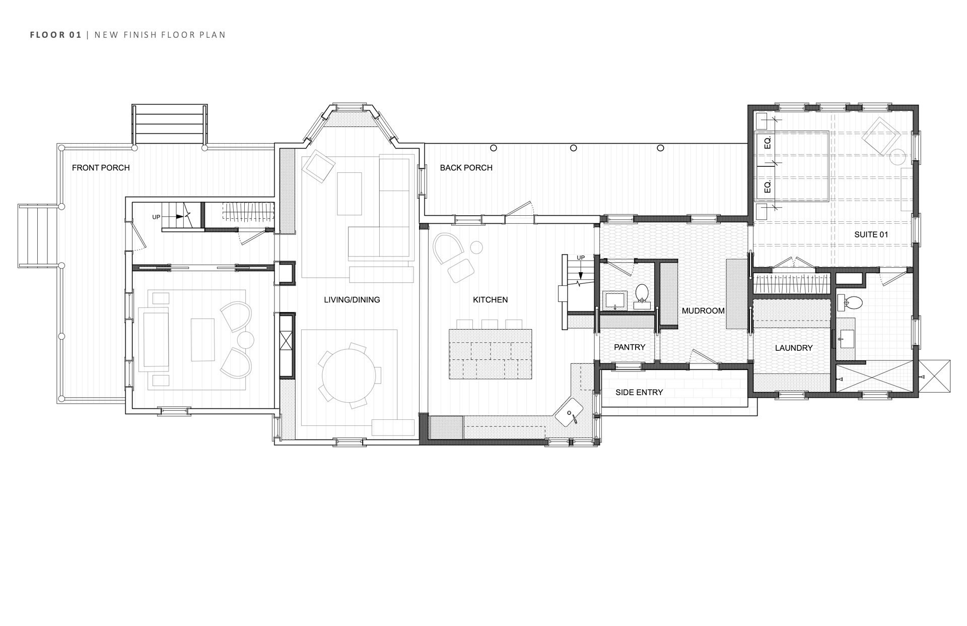
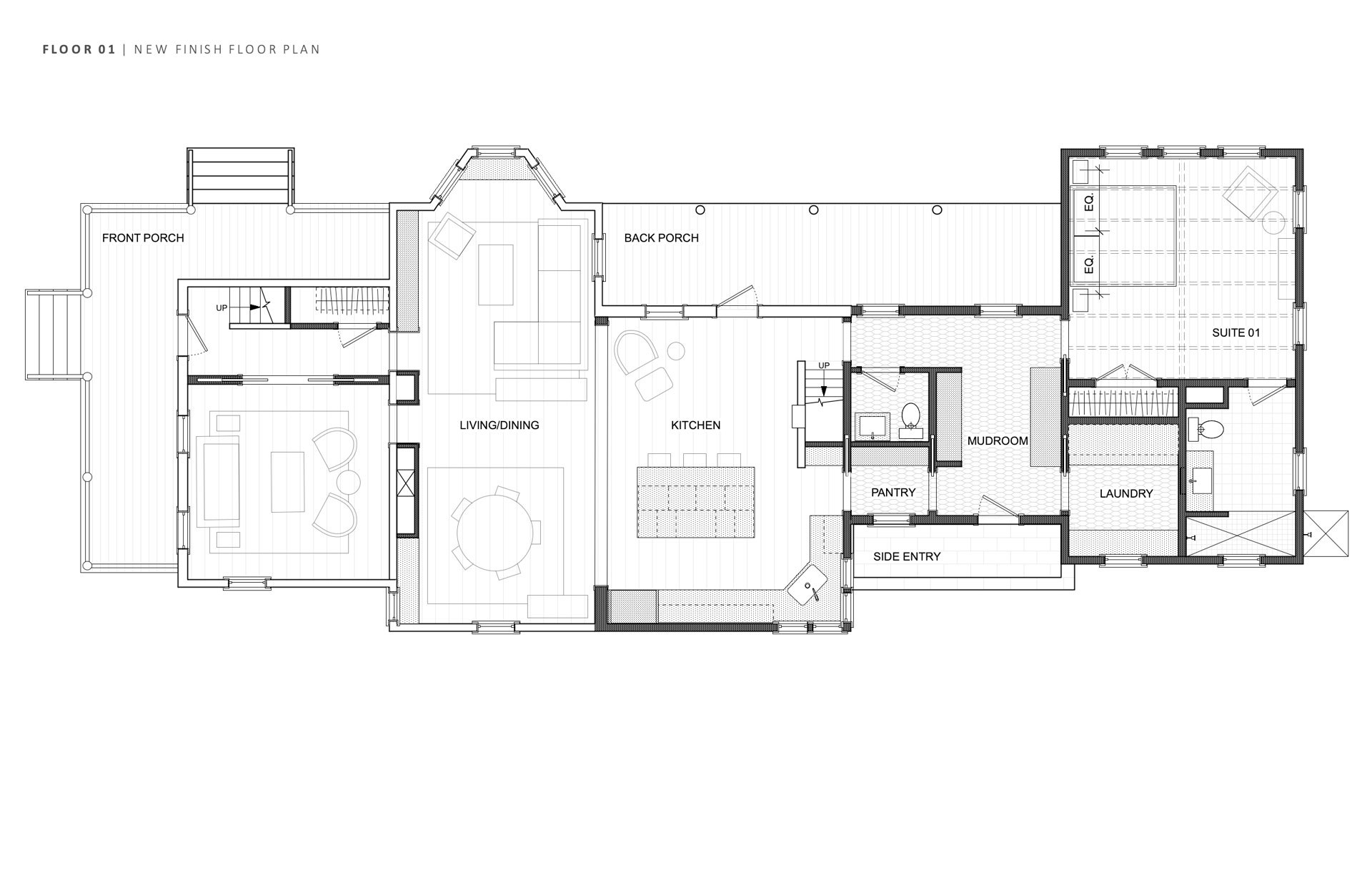
When you live in a picturesque vacation town surrounded by beaches, breweries, and vineyards, you never seem to run out of summer guests! For the couple who purchased this late 19th-century Victorian, no summer home would be complete without an accessible ground-level suite so guests of all ages and abilities could visit and enjoy the house for years to come.
About This Project
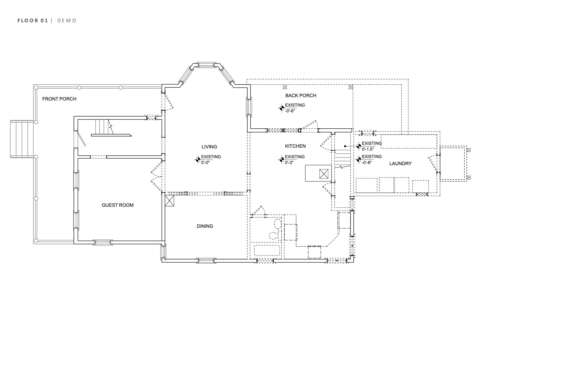
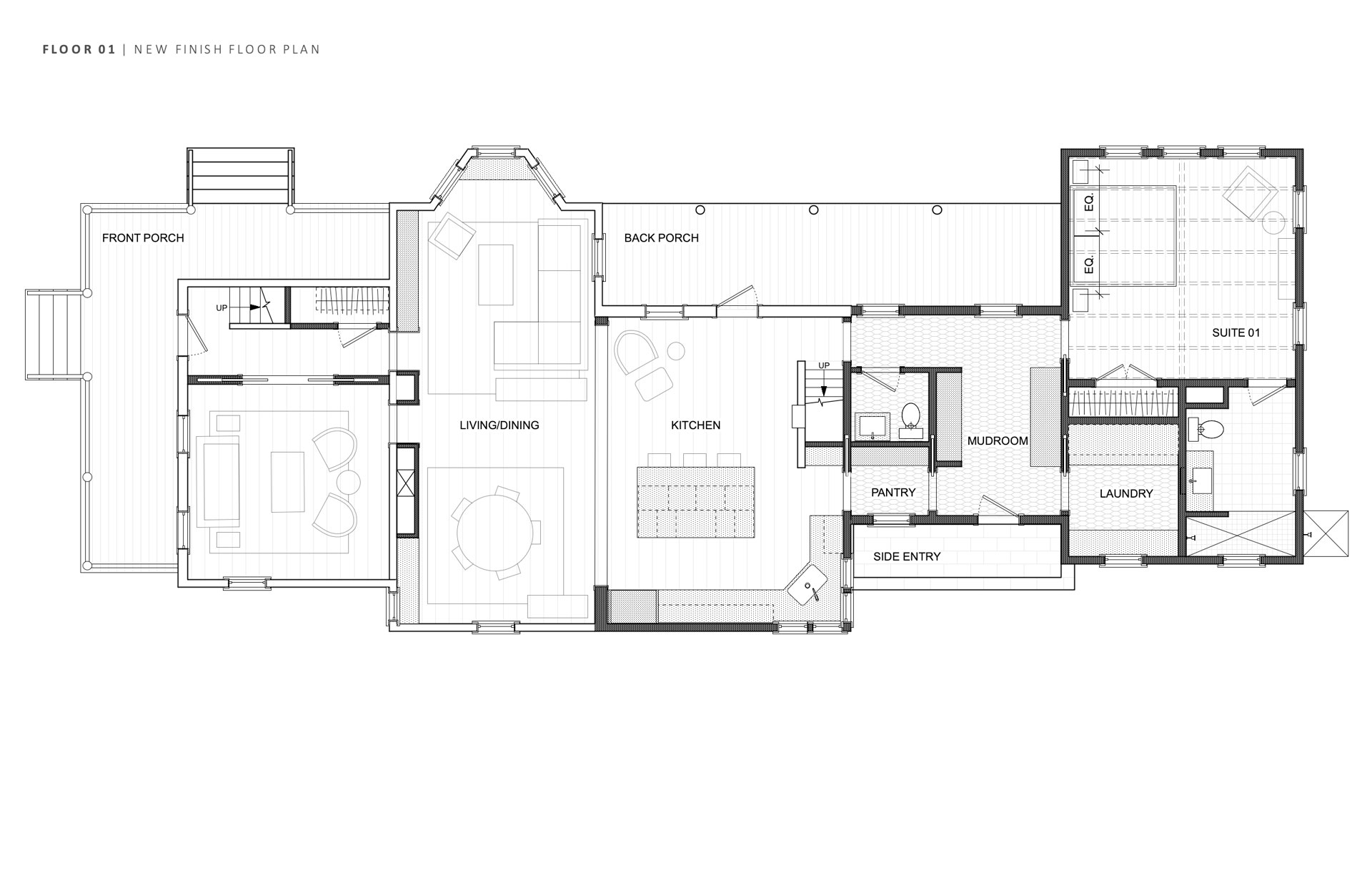
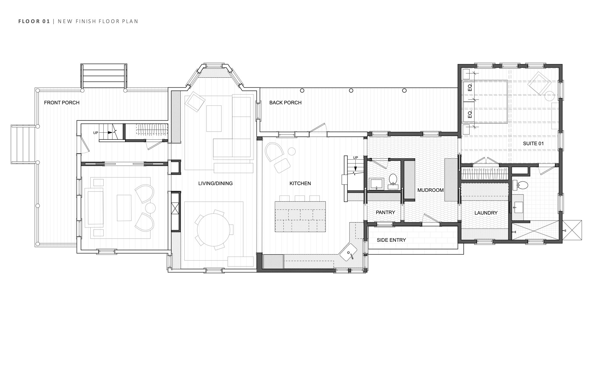
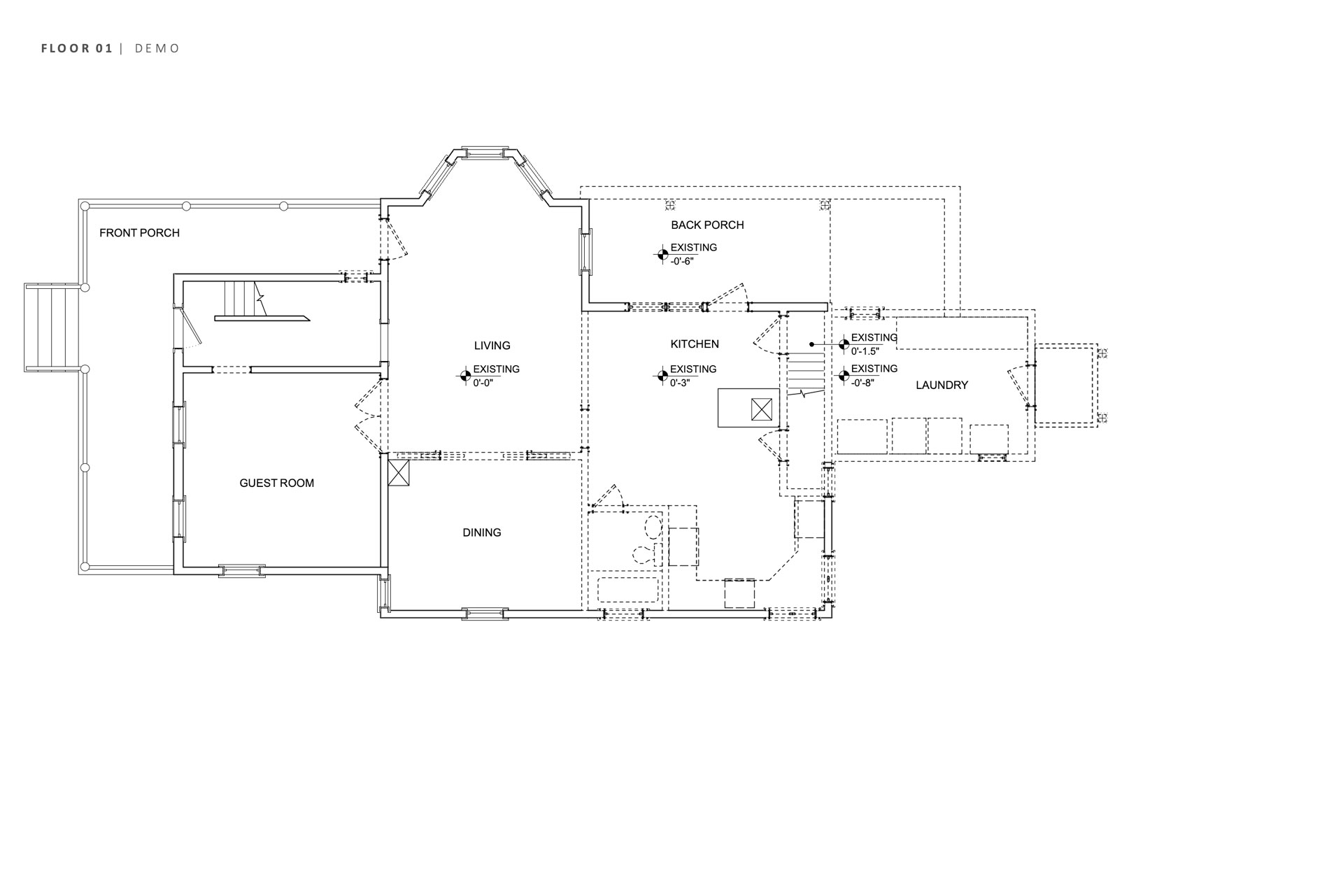
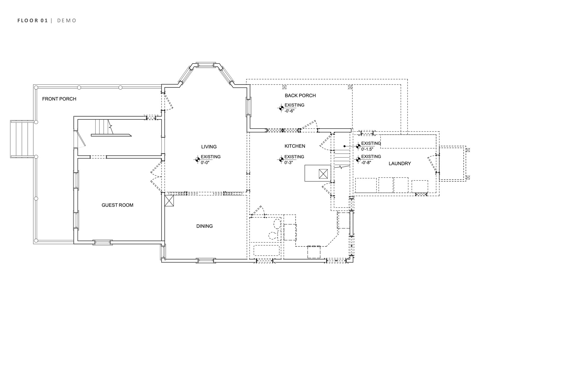
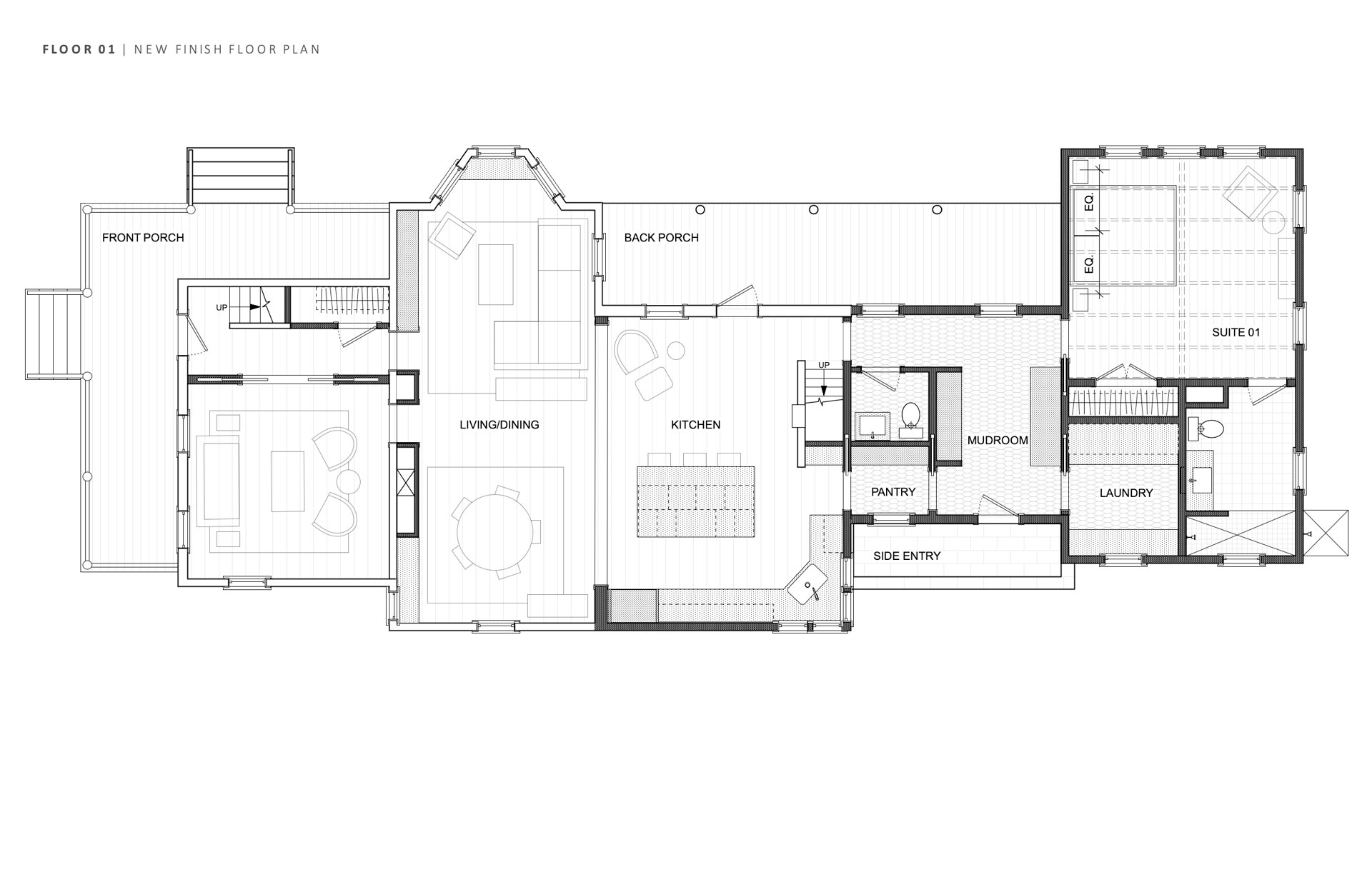
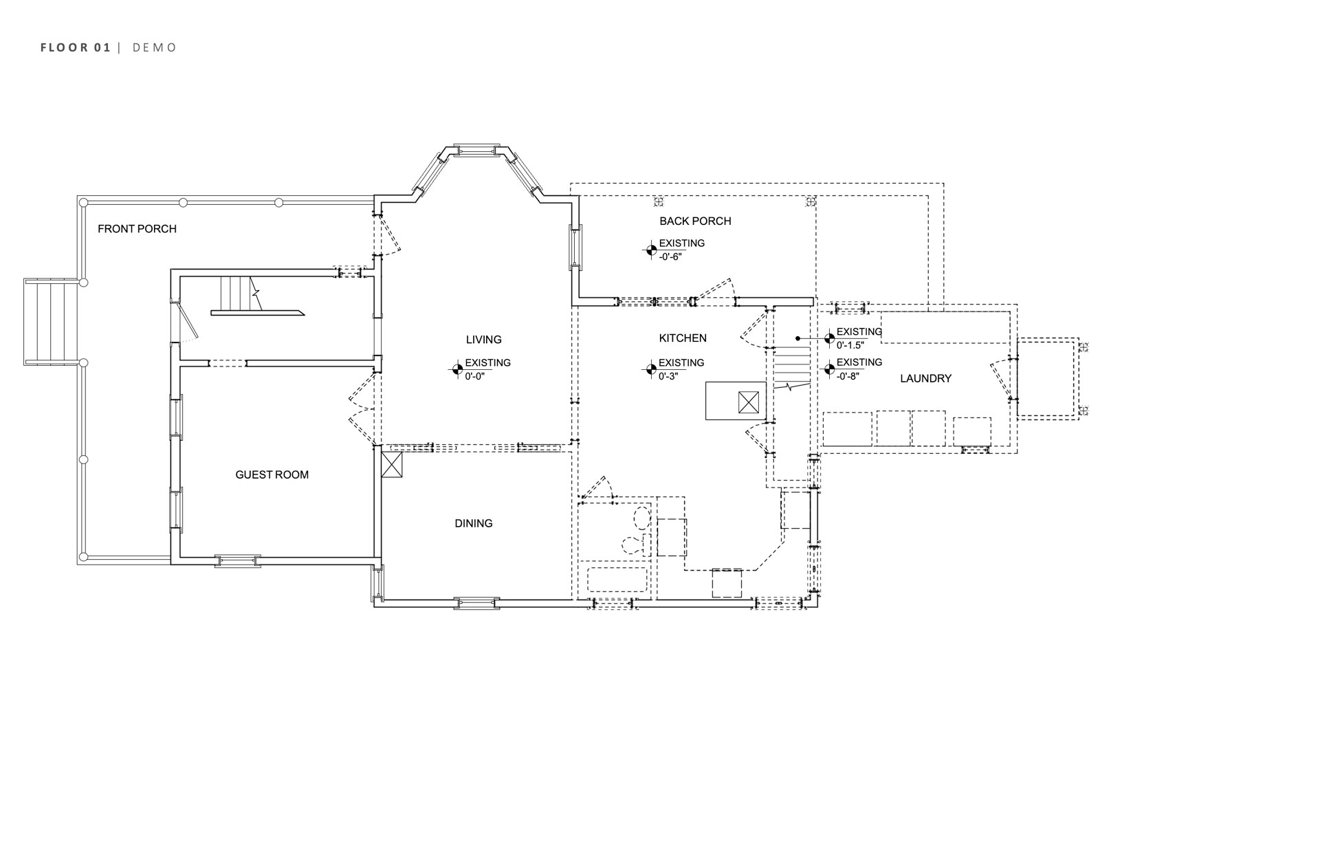
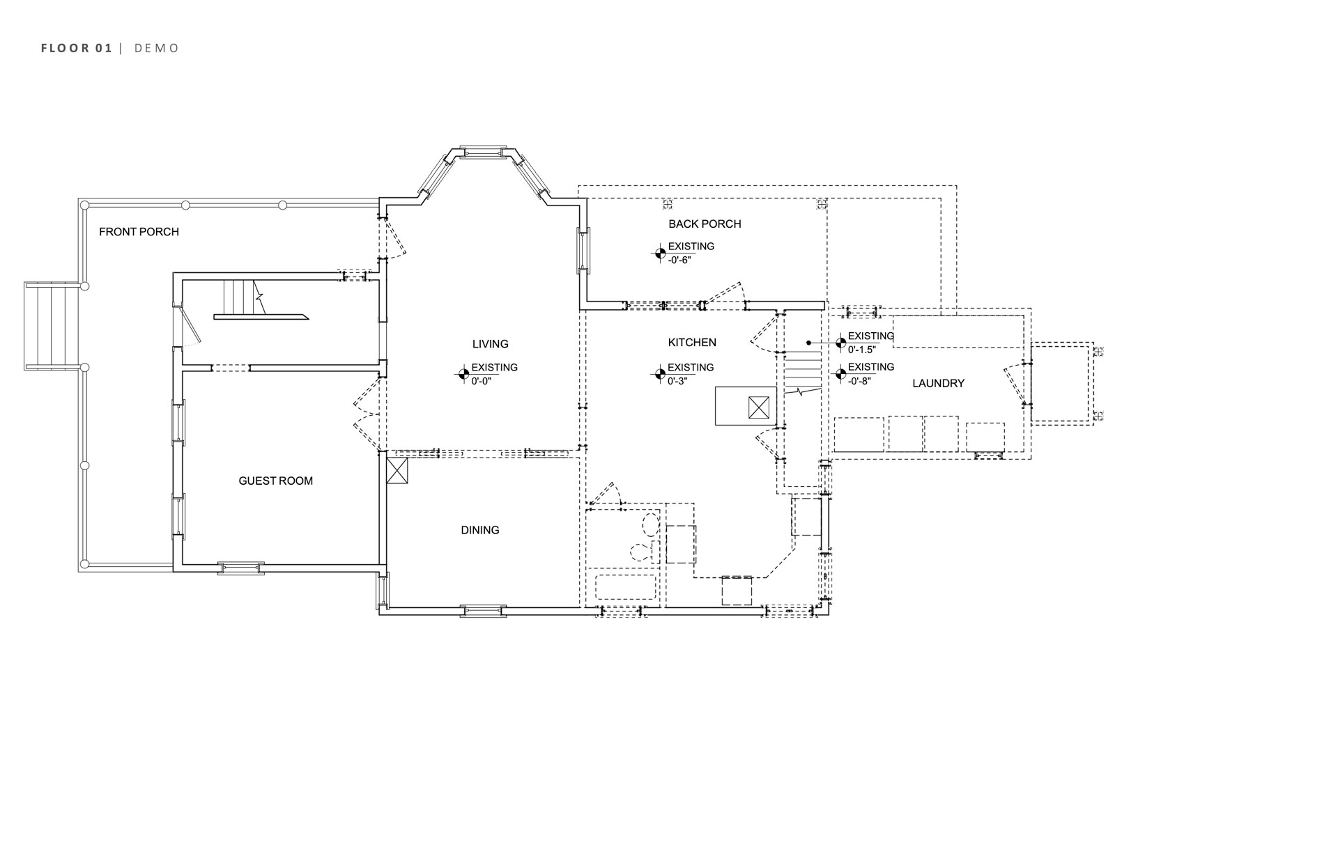
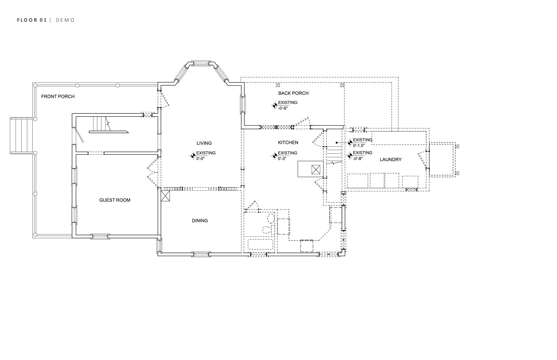
This renovation began by opening the main floor and staircase of the house, increasing natural light and interior lines of sight. By removing the wall between the kitchen and dining room and by adding a large steel girder to transfer the second-floor load, we doubled the size of the kitchen without changing its overall footprint. The small back utility room was removed and replaced with a new addition including a side entry, mudroom, laundry, powder room, and private guest suite with a striking cathedral ceiling. Against the new bright white walls, the owner showcased her love of color through her selection of tile, paint, and of course the coveted pink stove. The result is a house to be enjoyed by many visitors, but with the personalized touch necessary to make it feel like home.
THE DESIGN PROCESS
BEFORE & AFTER





















































